PETROVIČ HEADQUARTERS DESIGN

Architecture

CLIENT: Petrovič

Design: Andrej Kregar, Ambrož Močnik

The Petrovič headquarters design project allowed us to redefine the visual and spatial identity of Petrovič d.o.o., a leading company in roofing and construction. From the start, we aimed to create an office building that clearly expresses the company’s core values. These include reliability, customer care, long-term quality and environmental responsibility. At the same time, we wanted the building to introduce a more modern and refined presence into its industrial surroundings.

A Modern Design Approach for the Headquarters

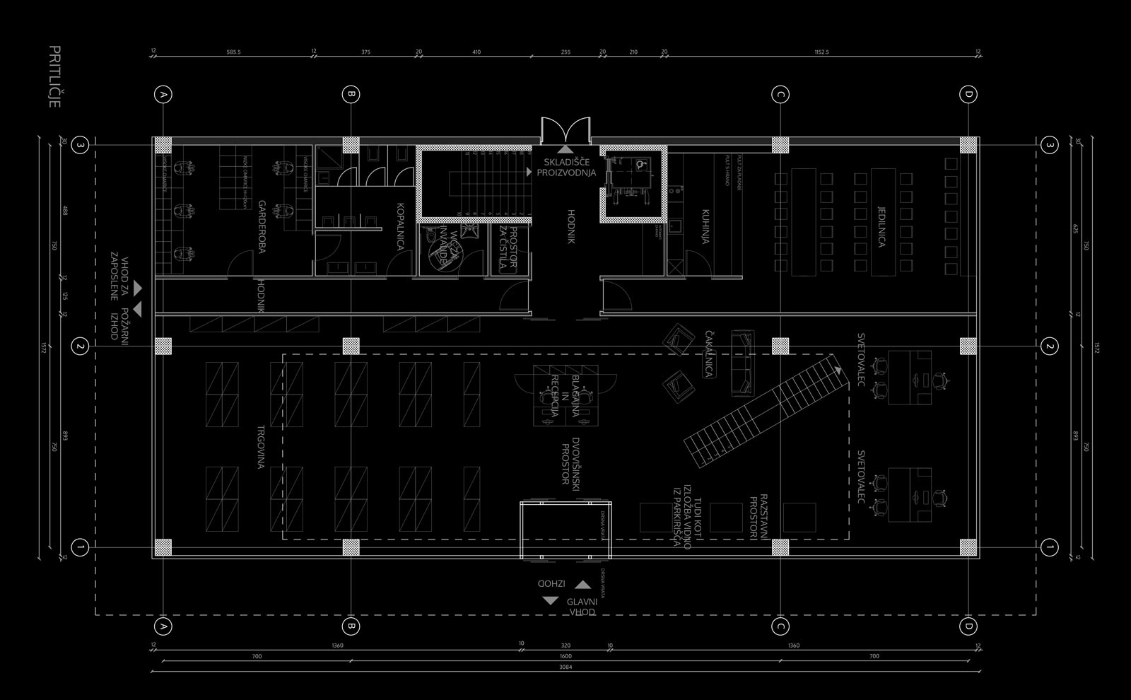
The result is a contemporary office building that immediately catches the eye. It is divided into two functional parts: a welcoming showroom on the ground floor and business premises on the first floor. This layout supports everyday workflow and creates a clear route for visiting clients. In addition, the symmetry of the architecture communicates professionalism, precision and confidence, helping visitors feel that they are in good hands.

We placed special attention on the façade. Because Petrovič works in the metal roofing industry, the building features the same roofing materials used in their own products. As a result, the building becomes a subtle but powerful showcase of their technical expertise. This choice also strengthens the connection between the physical architecture and the identity of the company.

Interior Design Aligned With the Headquarters Vision

Inside, the design follows the same approach. Clean lines, balanced proportions and a controlled selection of materials create a calm and efficient work environment. Furthermore, the interior blends the coolness of metal with a refined business character, which supports both daily operations and client meetings. This clarity in material and form reinforces the values expressed in the Petrovič headquarters design.

Architecture That Expresses Petrovič Values

Overall, the new headquarters does more than offer functional workspace. It communicates who Petrovič is as a company. Through thoughtful use of materials, a modern spatial concept and a strong visual identity, the building embodies the company’s mission and ambition for the future.

  • CONTACT
  • 031 345 400
  • info@kreatif-design.com
  • ADDRESS
  • Sinja Gorica 105b
  • 1360 Vrhnika
  • Slovenia

ALL RIGHTS RESERVED 2024 KREATIF DESIGN